MIRA SOL
San Luis Obispo, CA


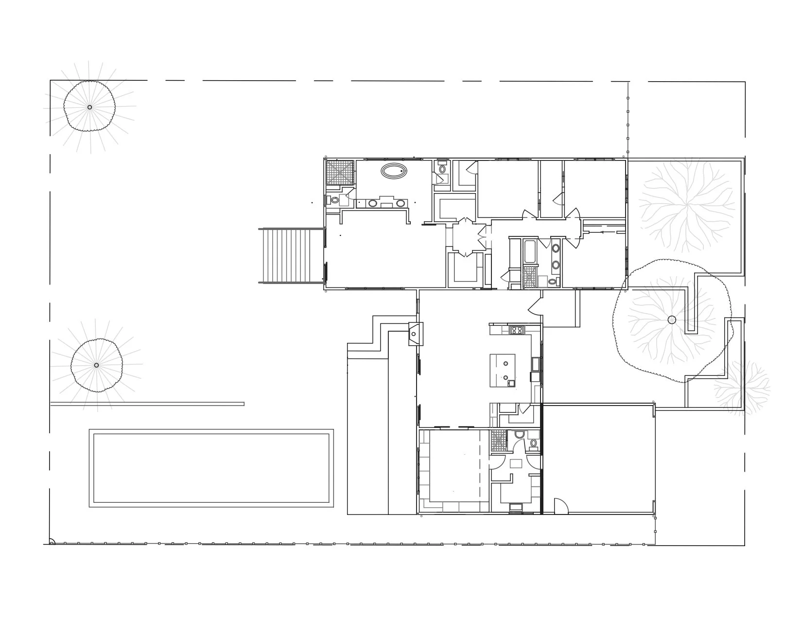
A very talented and artistic young couple purchased this 1970s ranch home with dreams of turning it into a private oasis and backyard entertainment area for friends and for their growing family.  Their program included a 500 square foot master bedroom addition, whole house remodel and whole site landscape remodel.

Utilizing the family’s landscape design skills, space planning and interior design talents, we worked as a team to implement their goals, update the home and make their vision a reality.


Project Role: Architect
Completed: 2011  
Project Size: 3593 s.f.
Landscape Architect/ Landscape Contractor: Fortini Landscapes
Interior Design/ Space Planning: Fortini Interiors
Kitchens: Kepler Design Group
Photo Credits: Brad Daane/ Great Daane Graphics