WHOLE HOME RENOVATION
San Luis Obispo, CA


At initial meetings, our active retired clients described their primary design goal: to expand and transform their dated home into a welcoming place to socialize with loved ones. They also wanted the project done quickly to maximize their time to enjoy it. 

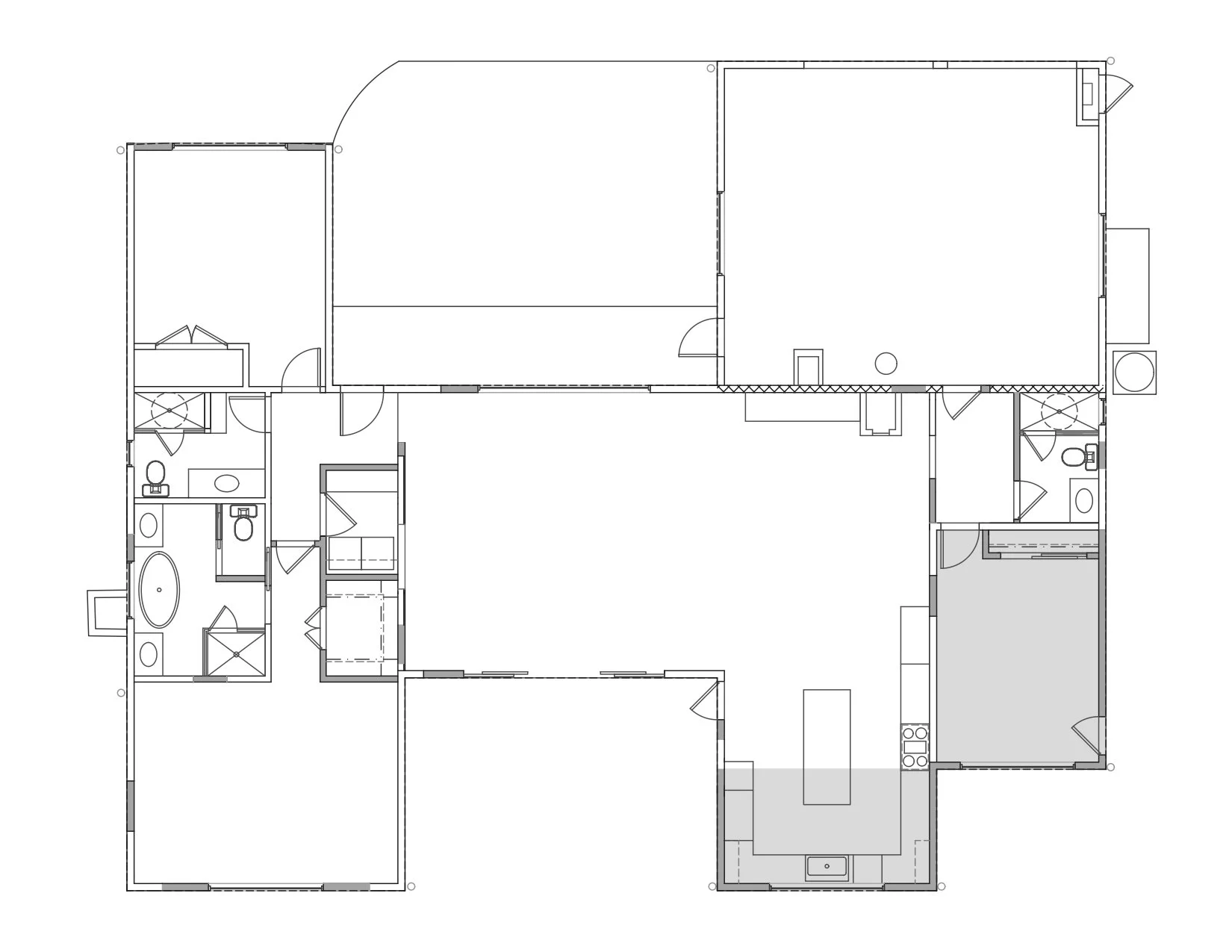
In collaboration with Courtney Pinckert, we modified the existing floor plan to accommodate their lifestyle. We swapped the kitchen and dining room locations to encourage guests to gather in the new bar/ dining area rather than the kitchen.  To delineate the public and private areas of the home, a door leading directly from the living room to the master bedroom was moved to a small bedroom hall. Additional design changes included : enlarging the kitchen and adding a guest room, adding stone veneer on the exteriors and interior fireplace wall and enlarging windows to capture surrounding views.  Within a year of first meeting our clients, we are delighted to know that they’re enjoying their home while making new memories with family and friends.


Project Role: Architect
Completed: 2024  
Project Size: 317 sf kitchen and guest room addition, and whole home renovation
Structural Engineer: SSG Structural Engineers
Contractor: Jay’s Construction
Designer: Courtney Pinckert, Interiors/Design
Landscape:  Purlieu Landscape Design
Photo Credits: Matt Sansone, SLO photos